Programme :
- Création d’une nouvelle entrée du centre hospitalier.
- Implantation d’un nouveau service (accueil, admissions, facturation) en rez-de-chaussée, et création du service « odontologie » à l’étage.
Le bâtiment est un volume simple, évident, qui s’ouvre sur une place piétonne.
Le hall est la charnière, entre la rue et les différentes zones de services (attente, admission, traitement externe, service odontologie)
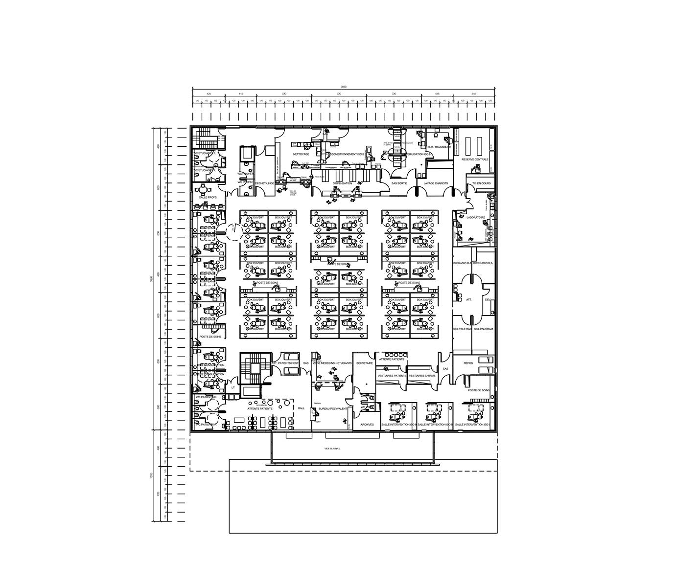
Nous avons recherché à réduire les parcours des patients et des étudiants dans le service odontologie, pour donner une bonne lisibilité du process de l’intervention, arrivant ainsi à une organisation autour du carré.
Au centre du plateau, sont implantés les boxes ouverts permettant un accès facile des étudiants et des patients vers tous les autres services. Sur le périmètre de ce plateau s’organisent les autres espaces pouvant être commun à plusieurs services : radiologie, prothèses, chirurgie, pôle logistique, accueil patient, secrétariat….





